Hanse Chemie been standing for quality and reliability, see for yourself!
Project works
In addition to the listed products, we offer together with expert partners very attractive engineering and steel construction. These include the design of materials handling systems, etc. special designs according to customer specifications. Our professionals have the necessary know-how, required licenses, welding qualifications and trained experienced staff to carry out projects and committed schedules.
Fig. 1: According to customers specifications
Fig. 2: Material hopper, Skip chute and funnel outlet as steel construction...
Fig. 3: ...now lined inside with 50mm ceramic wear protection
Fig. 1: Bunker outlet as 3D ,model
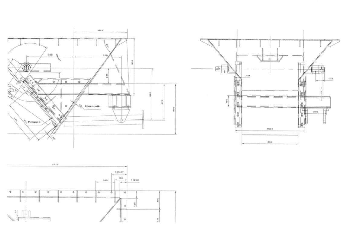
Fig. 2: Bunker outlet as 2D draw
Fig. 3: Bunker outlet as steel construction
Fig. 4: Steel construction after manufacting
Fig. 5: Bunker outlet is equipped with wear protection.
Do you have any further questions or would you like some professional advice? We look forward to your call!
You are very welcome to send us an inquiry by e-mail. We are looking forward to your inquiry!