Hanse Chemie been standing for quality and reliability, see for yourself!
HCHV Under-Pulley-Cleaner
for reversible / non-reversible belt operation
HCHV- scrapers were formed mainly for extreme continuous loads in harsh conditions and very high belt speeds designed, for example, mining conditions. The HCHV system is extremely robust designed for transport situations with strong material caking on the conveyor belt and for very tightly run thick belts.
The special characteristics of the HCHV - belt cleaner system at a glance:
technical variants and customizable modules for various installation situations and belt widths continuous non-stop operation no fold down in reverse mode robust, stable design for harsh operation conditions pressure flexible adjusting unit no costly spare parts inventory
System recommendation/adapted for:
- medium and strong material deposits/contamination - higher belt speeds > 5 m/s - Installation conditions with greater ground clearance
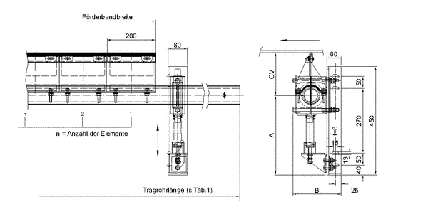
HCHV scrapers are placed in the lower belt directly behind the discharge drum. The best mounting position is the position B (approximately 120-150 mm from A, where the conveyor belt leaves the contact with the drums), tighten and vibration-free belt guide provided.
Use our xeperience, especially when space is restricted and critical, sicky bulk material massive cleaning problems prepare, with varying materials, seasonal changes in material consistency, etc.
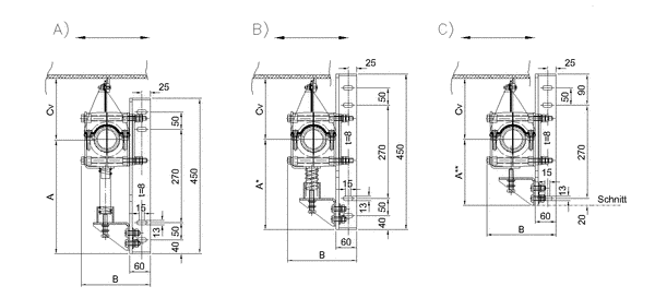
Measure A (installation variant A) when the springs are not under tension and without dead load/spring preload; standard with pressure spring (L=130 m); Measure A* (installation variant B); execution with pressure spring (L=60 mm); Measure A** (installation variant C) without pressure spring.
Do you have any further questions or would you like some professional advice? We look forward to your call!
You are very welcome to send us an inquiry by e-mail. We are looking forward to your inquiry!